top of page
A&P
Services
People & Profile
Projects
Researches
Activities
Partners
Contact
Properties
Projects
More
Use tab to navigate through the menu items.
<< BACK
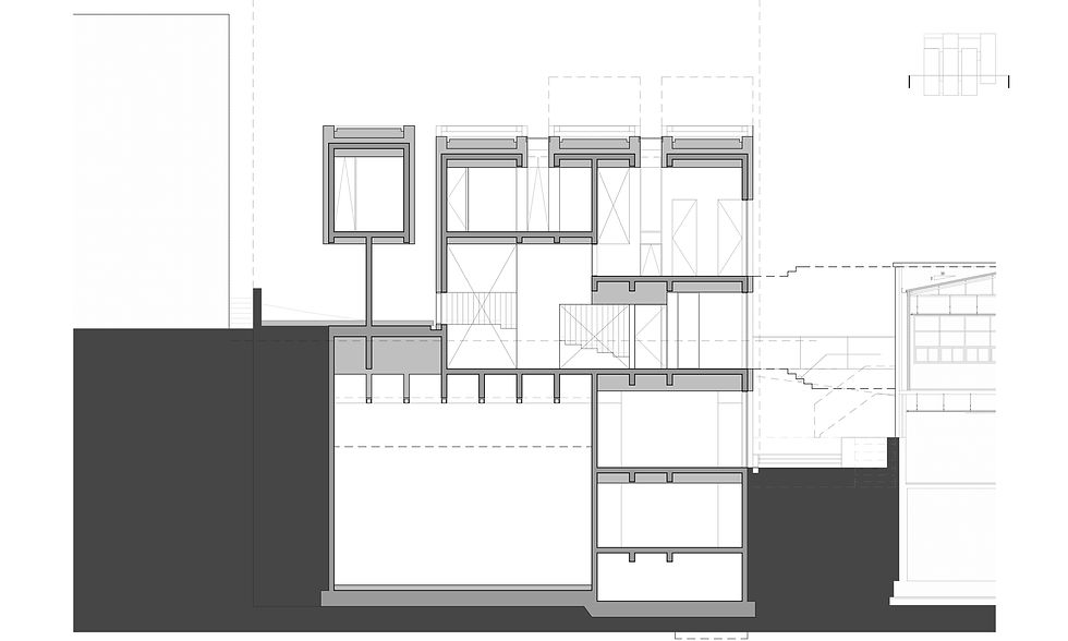
Sinchon Culture Center, Seoul Korea
(competition project)
1/14
bottom of page